
PARTER 100
DOM RODZINNY – NISKOENERGETYCZNY
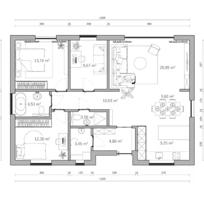
Parterowy dom o powierzchni 100 m² zaprojektowany z myślą o komforcie i stylu.
W środku znajdziesz:
- salon z aneksem kuchennym
- 3 sypialnie
- 2 łazienki
- pomieszczenie gospodarcze
A to wszystko w eleganckiej bryle. Idealny dla rodzin, ceniących funkcjonalność i nowoczesny design!
7
Liczba pomieszczeń
100,00m²
Powierzchnia
💰Cena: 294 000 zł brutto
🧱 Zawartość oferty
- Projekt budowlany
- Ściany zewnętrzne wykończone z zewnątrz styropianem 20 cm oraz siatką , klejem i tynkiem silikonowo-silikatowym,
- Ściany wewnętrzne obite płytami OSB-3
- Konstrukcja wiązarowa dachu
- Pokrycie dachowe – dachówka Brass Celtycka Lumino
- Rynna Bryza
- Montaż elementów prefabrykowanych
- Stolarka okienna 3-szybowa Salamander 82
- Drzwi wejściowe Wikęd z termo ościeżnicą
- Montaż pokrycia dachowego i orynnowania
- Transport i montaż do 50km w cenie
❌Cena nie zawiera
- Adaptacja projektu do działki oraz uzyskanie pozwolenia na budowę
- Zatrudnienie kierownika budowy
- Wykonanie fundamentów pod budynek
- Instalacja WOD-KAN
- Instalacja grzewcza
- Wylewki
- Wykonanie przyłączy zewnętrznych
🛠 Budujemy Kompleksowo
Jeśli zdecydujesz się na budowę z nami – oferujemy wsparcie na każdym etapie:
-
Pomoc w uzyskaniu pozwolenia na budowę
-
Wykonanie fundamentów
-
Instalacje sanitarne i grzewcze
-
Profesjonalne wylewki betonowe
Z GAMEBO-dom budujesz wygodnie, bez stresu i z jednym sprawdzonym partnerem.
🚛 Koszty transportu (poza 50 km)
| Odległość | Koszt netto |
|---|---|
| 50–80 km | 10 000 zł |
| 80–200 km | 16 000 zł |
| Powyżej 200 km | 20 000 zł |







